1
/
of
2
Multi-spray Shower: Free Standing Platform Operated and Hand Operated Eye/Face Wash
Multi-spray Shower: Free Standing Platform Operated and Hand Operated Eye/Face Wash
Product Code: EM690
Couldn't load pickup availability
Product description
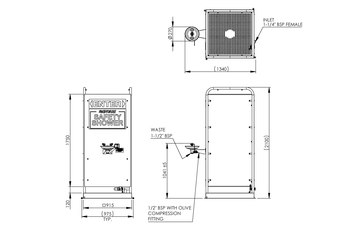
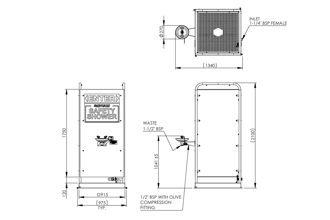
Enware's freestanding multi-spray decontamination shower for use where hazardous substances are used. The multi-sprays ensure maximum coverage of clothing and the highest quality components ensure reliability. Constructed from stainless steel for maximum durability and reliability.
Key Selling Points
- 16 Multi-spray outlets
- Three side panels powder coated in Green
- Step-on shower activation
- Hand operated eye/face wash
- Constructed from 316 grade stainless steel
- Minimum Pressure to achieve ANSI Z358.1 and AS4775 compliance (kPa)
- 210
- Pressure Notes
- Caution should be taken when pressure exceeds 550 kPa
- Flow Rate @ 200 kPa (L/min)
- 97
- Flow Rate @ 300 kPa (L/min)
- 118
- Flow Rate @ 1000 kPa (L/min)
- 216
- Inlet Connection
- 32mm (1-1/4” BSP) Female / 15mm (1/2" BSP) Male
- Water Supply Line Size
- Supply piping shall be adequately sized to meet fl
- Waste Water Outlet Connection
- G 1-1/2” BSP
- Connection Notes
- NPT and flange connections available for petro-chemical and offshore applications
- Finish
- Brushed
- Mounting Type
- Floor Flange
BIM Files
Brochures
Dimensional Drawings
Product Information

