Complete Solutions
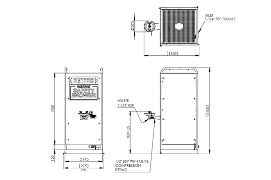
Emergency Showers - Platform
Emergency Showers - Platform
-
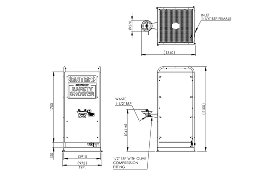
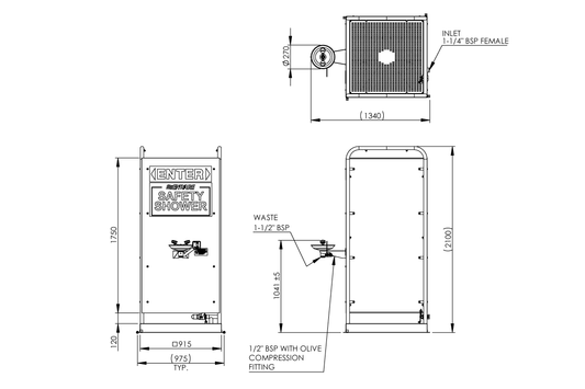
Fixed Enclosed Bunded Platform Only
Product codes: ECEPENC-RETRO
-

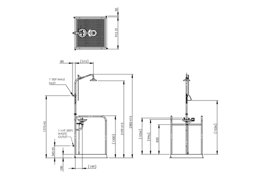
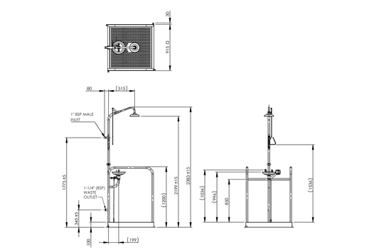
Free Standing Hand Operated Deluge Shower and Platform Operated Eye Wash
Product codes: EP1020
-

Multi-spray Shower: Free Standing Platform Operated and Hand Operated Eye/Face Wash
Product codes: EM690

