1
/
of
7
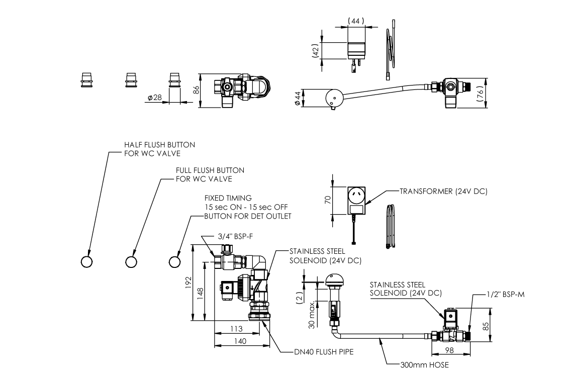
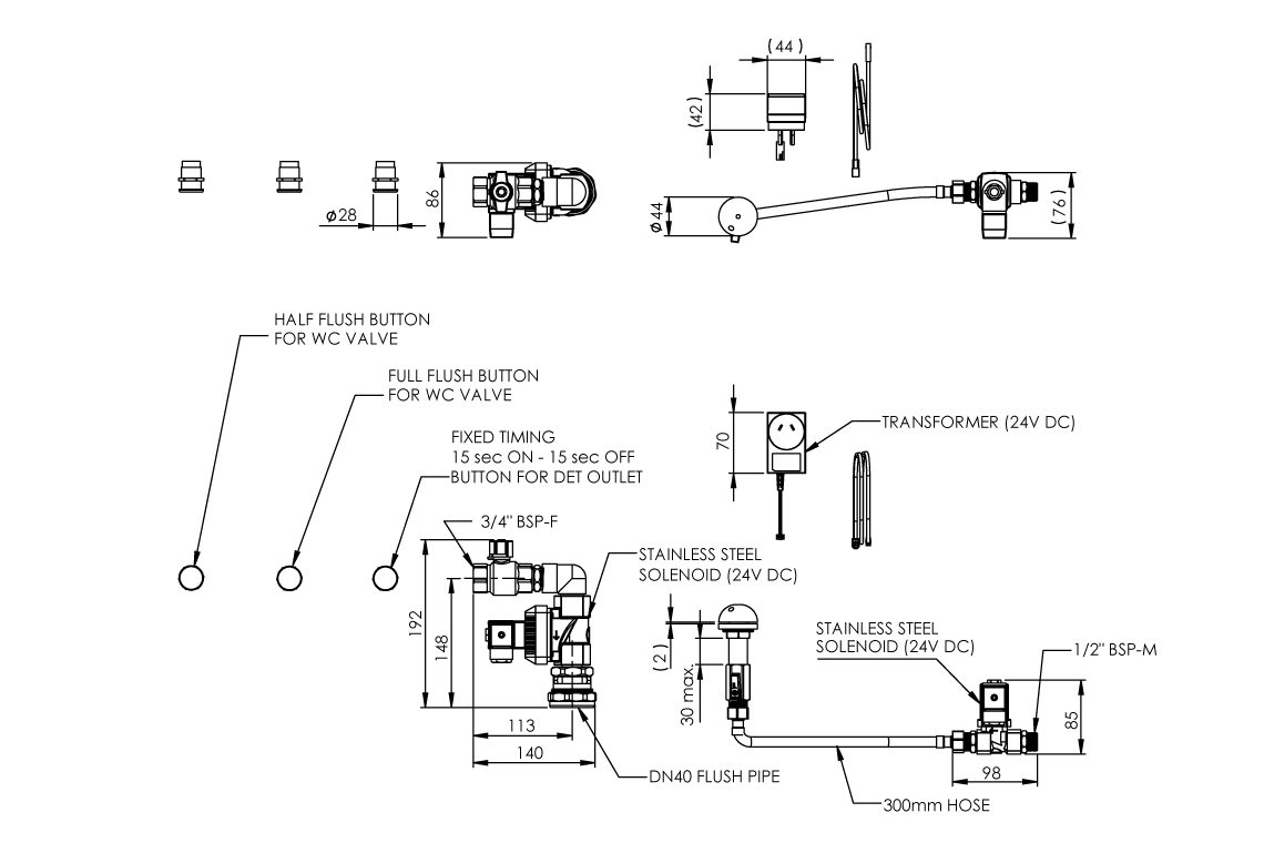
Piezo Operated 90 Degree Dual Flush Valve and Basin Tap with Detention Outlet for Combination Unit
Piezo Operated 90 Degree Dual Flush Valve and Basin Tap with Detention Outlet for Combination Unit
Product Code: EMD885
Couldn't load pickup availability
Product description
Piezo touch operated basin control and outlet with dual flush controls.
Key Selling Points
- Piezo Touch Operated button
- Allows for delivery of water to basin outlet and dual flush for WC
- Includes High Security domed basin outlet
- Designed to mount in Stainless Steel Panel or WC/Basin Combi Unit
- Basin Programmable on site to suit requirements. 3sec- 600sec
- Programmable lock-out period (to prevent continuous running)
- WC Pre-Programmed to optimise 1/2 Flush/Full Flush
- 1/2" stainless steel solenoid valve for Basin Supply
- 3/4" stainless steel solenoid valve for WC Flush
- Includes Air Break for Flush
- Includes connection cables for Piezo's/ Solenoids and 24V Power Pack
- 24V DC power pack with 4.5m cable
- IP 68 rated Piezo touch button
- Ideal for secure/ high security installations in Correctional Centres
- Piezo buttons are ligature resistant when installed correctly
- Basin outlet is ligature resistant when installed correctly
- Standard WELS (Stars)
- 4
- WELS Notes
- AS PER EMF410M-4 (FOR FLUSHING), DET617 SPOUT FOR BASIN
- Certifications
- WM 40116,WMKA1583
- WELS Half Flush Volume (L)
- 2.8
- Minimum Recommended Pressure (kPa)
- 200
- Maximum Recommended Pressure (kPa)
- 350
- Water Supply Line Size
- 1" [25mm] copper pipe
- Flush Pipe
- 40mm
- Water Inlet Connection Method
- 1" BSP MI
- Finish
- Stainless Steel Brushed
- Materials
- Stainless Steel
- Touch Sensor Flush Activation
- PIEZO TOUCH
BIM Files
Brochures
Dimensional Drawings
Product Information






