1
/
of
4
Sensor and Touch-Activated Dual Flush WC Flushing System - Front Access
Sensor and Touch-Activated Dual Flush WC Flushing System - Front Access
Product Code: EMF511MIR-3
Couldn't load pickup availability
Product description
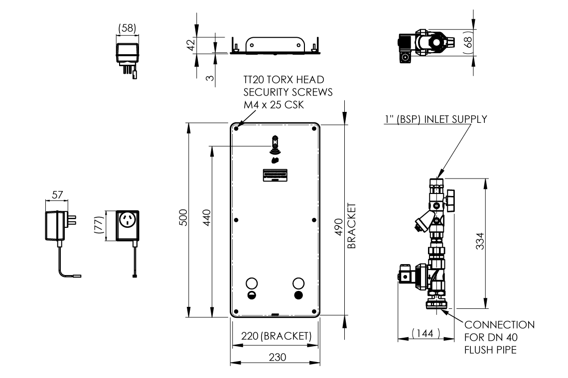
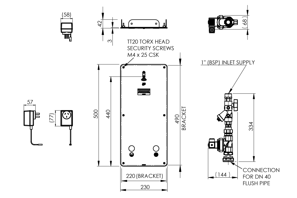
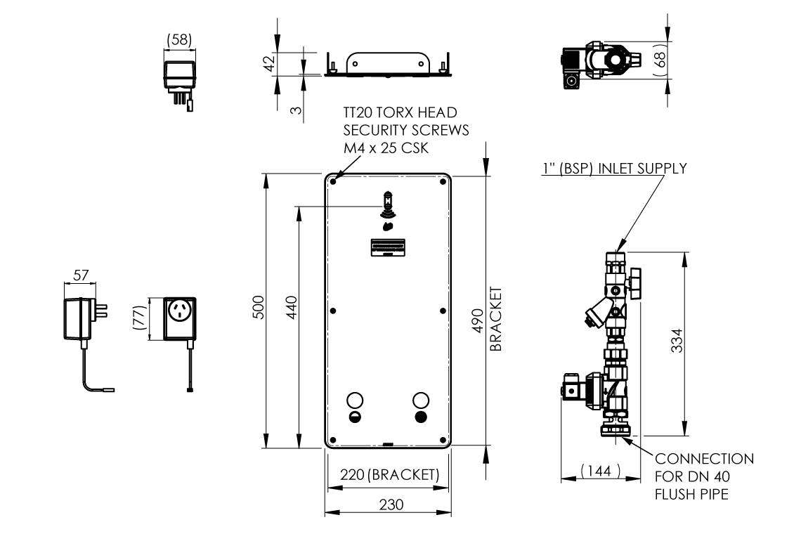
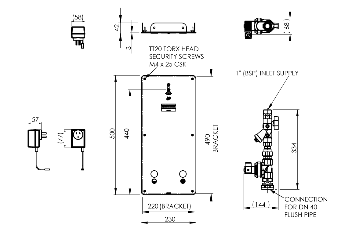
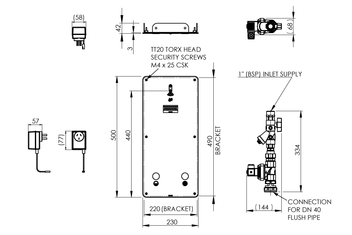
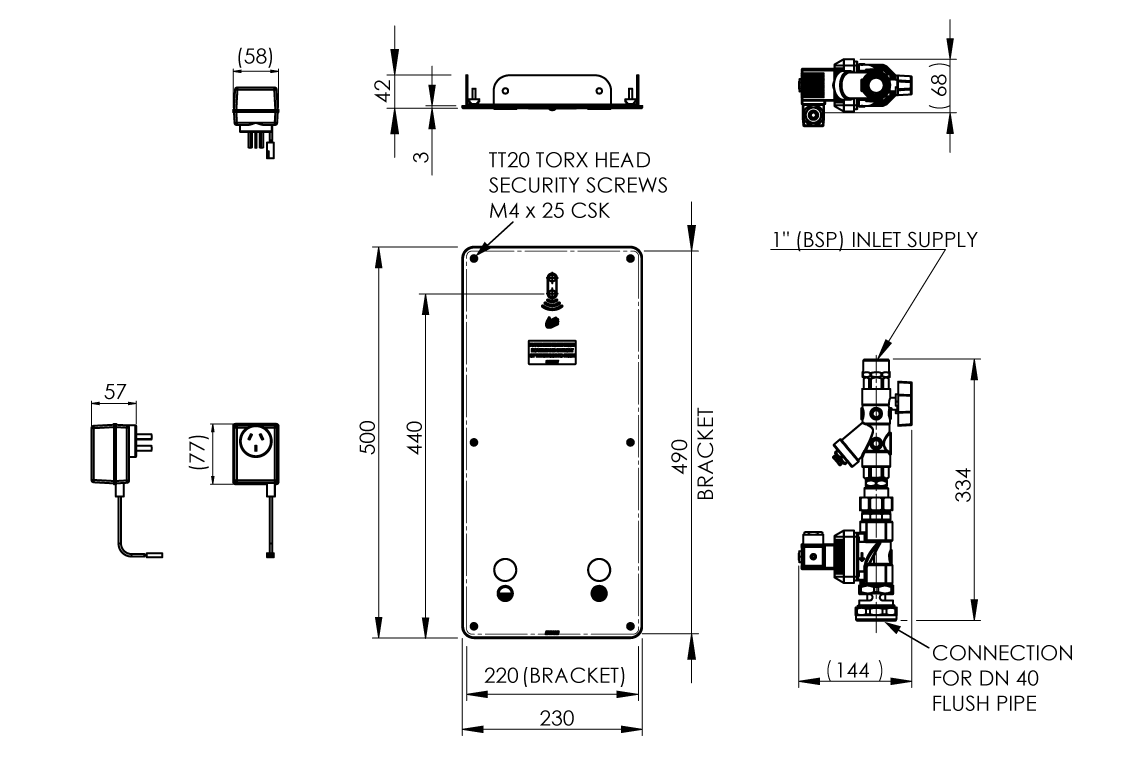
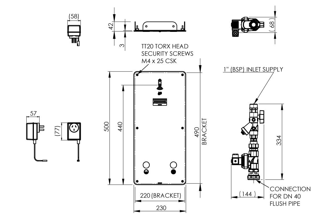
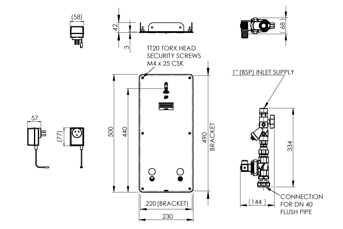
Enware's WC flushing systems provide a neat and reliable flushing solution using infra-red and piezoelectric technology particularly suited for public access applications. Uses a WaterMarked solenoid that when combined with an appropriate pan delivers either a 3L or 6L flush. Large panel can be an access panel for the flush valve. Stylish and strong electronic piezo operation using mains power. Semi concealed installation with a stainless steel panel and security screws. Shut off valve, filter and airbreak included.
Key Selling Points
- Touch-free flush activation with infra-red sensor, or touch activation via piezo button control
- Suitable for AS1428.1 applications
- Mains power 24V
- Large face panel allows access to valve components.
- Vandal resistant torx screws
- Standard WELS (Stars)
- 3
- WELS Category
- Lavatory
- Certifications
- WM 40116,WELS-3 Star-4L-WC Flush
- WELS Half Flush Volume (L)
- 3.4
- WELS Average Flush Volume (L)
- 4
- Maximum Recommended Pressure (kPa)
- 500
- Inlet Connection
- 1" BSP (25mm)
- Outlet Connection
- 1-1/2" BSP (40mm)
- Water Supply Line Size
- 1" [25mm] copper pipe
- Flush Pipe
- Flush Pipe: 1½” (40mm) flush pipe is required below the air break. (Note: use a maximum of 1x90º bend in flush pipe. If an offset is required 2 x 45º bends must be used. Maximum of 1 offset per flush pipe. Air break must be installed in a vertical
- Kv Factor (m3/h)
- 8.3
- Power Supply (AC/DC)
- AC
- Touch Sensor Flush Activation
- Press electronic piezo button to activate Full Flush or Half Flush
- Automatic Flush Sensor Activation
- Hover hand in sensor range to activate Full Flush
- Automatic Flush Sensor range
- 20-100mm
BIM Files
Brochures
Dimensional Drawings
Product Information



