1
/
of
3
Touch-Activated Dual Flush WC Flushing System - Duct Access
Touch-Activated Dual Flush WC Flushing System - Duct Access
Product Code: EMF410M-4
Couldn't load pickup availability
Product description
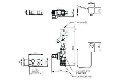
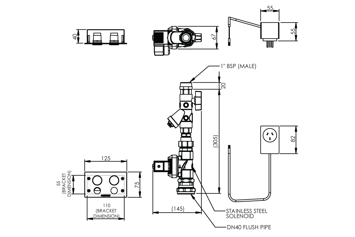
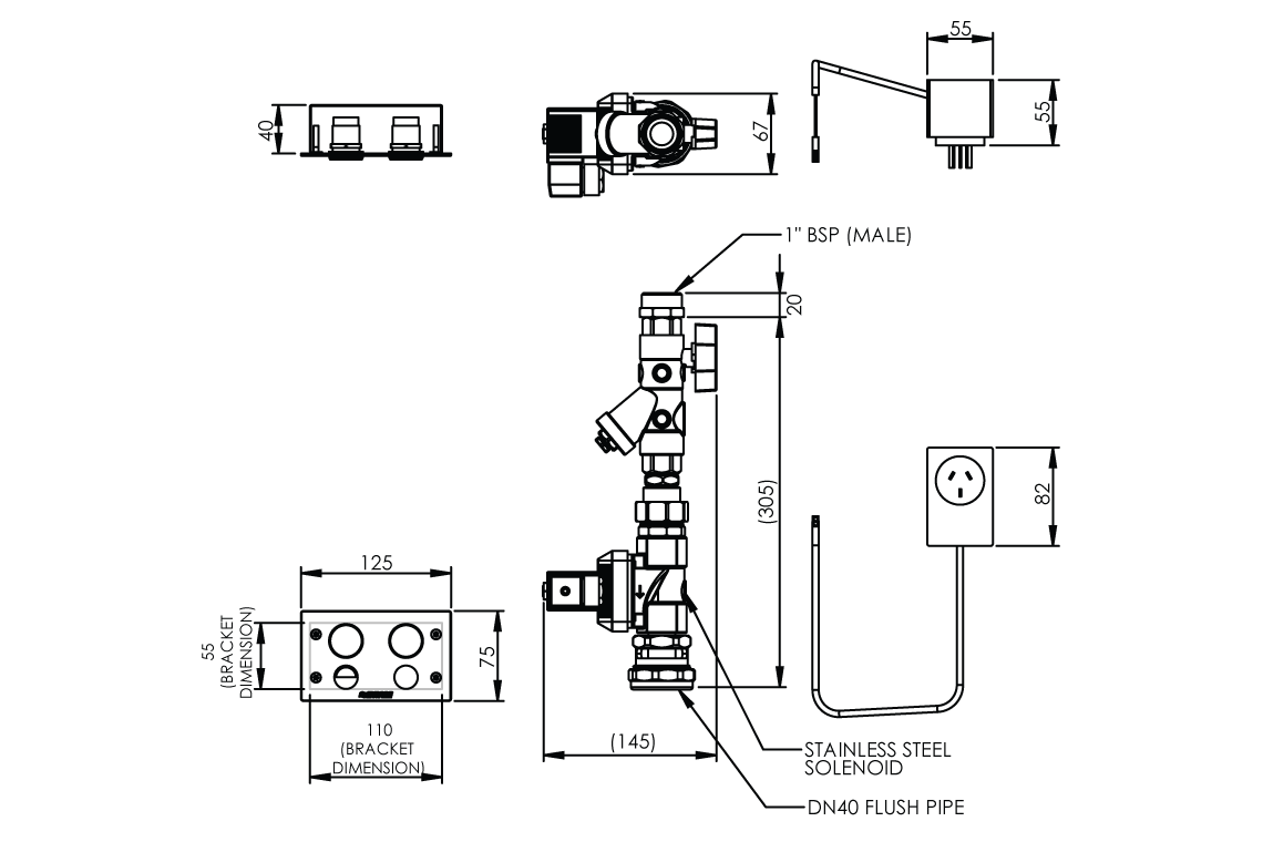
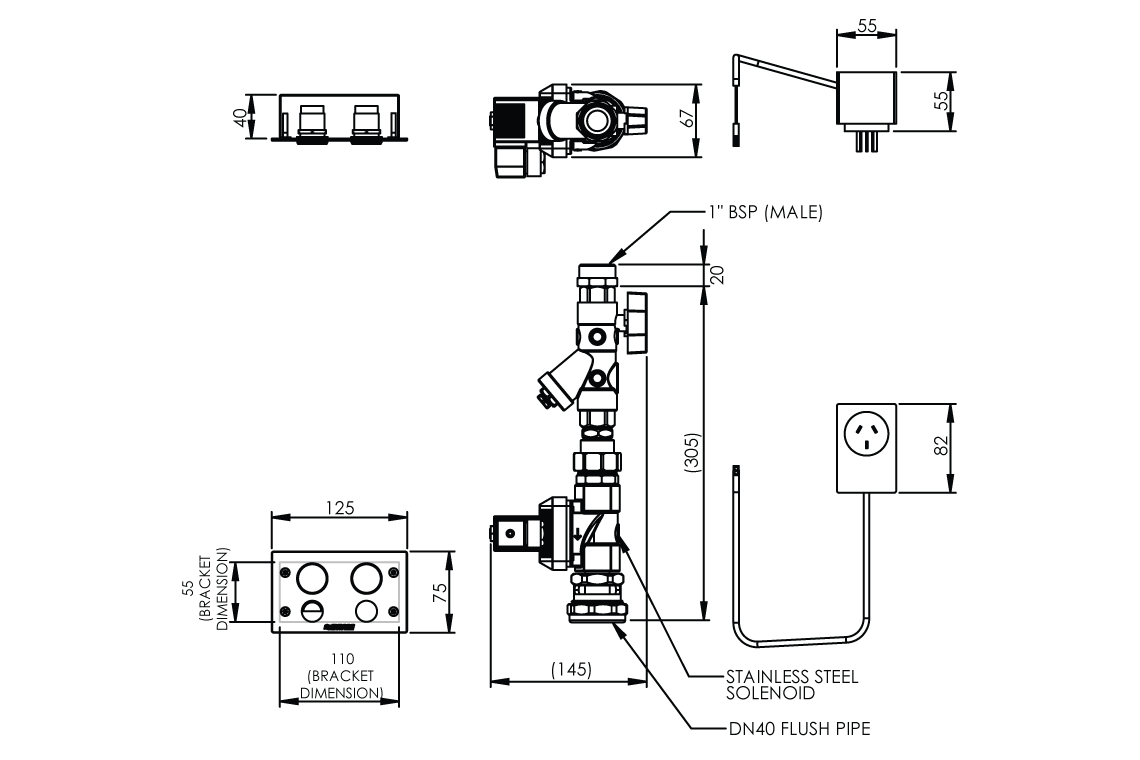
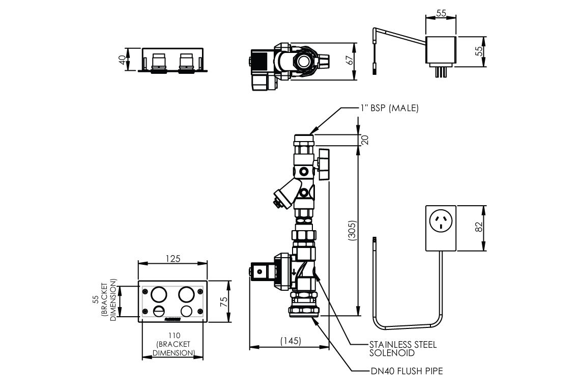
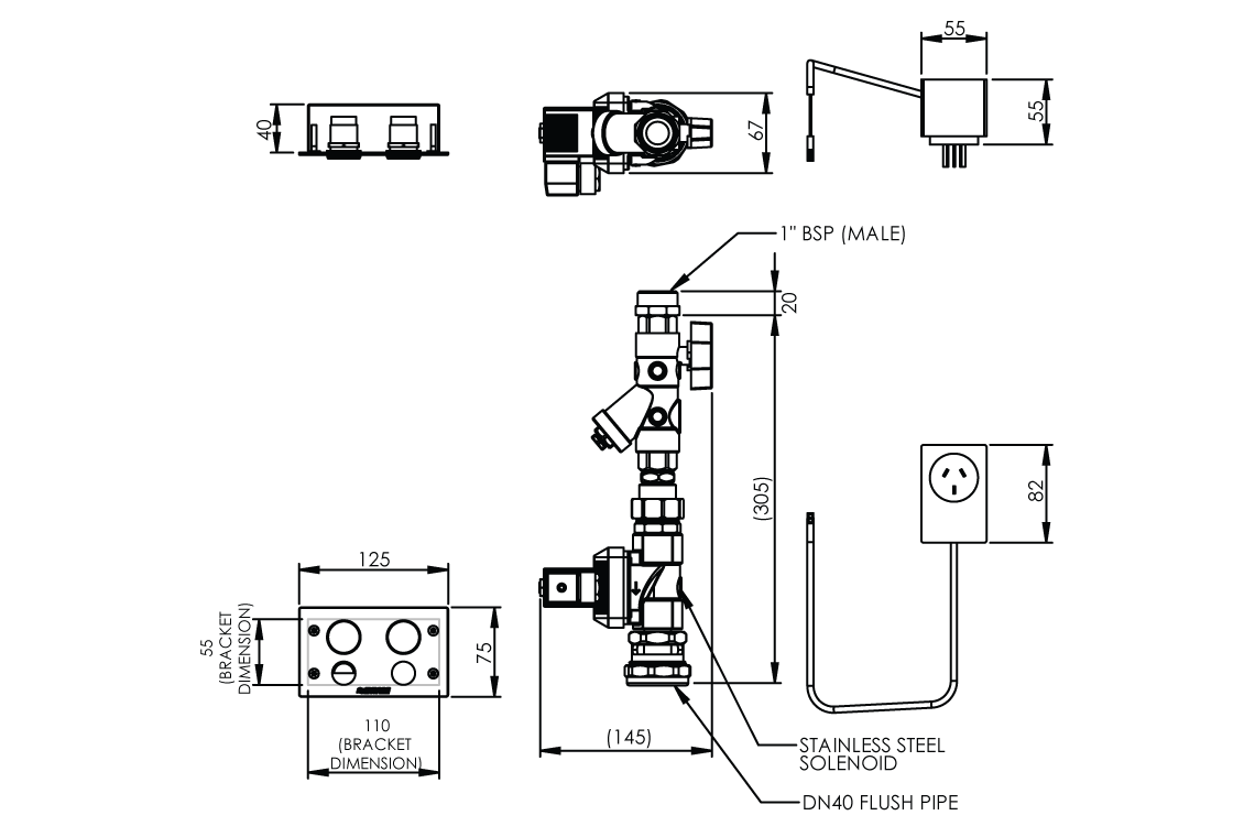
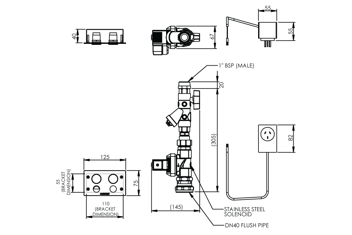
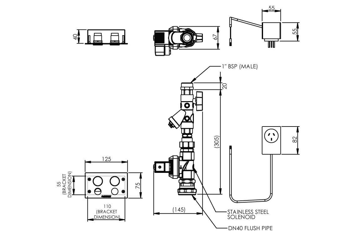
Enware’s WC flushing systems provide a neat and reliable flushing solution using piezo-electric technology particularly suited for public access applications. Uses a WaterMarked solenoid that when combined with an appropriate pan delivers either a 3/4.5L flush. Larger style face plate allows for front access where remote access is not available. Stylish and strong electronic piezo operation using mains power. Designed to allow for full access to flushing components located behind the stainless panel. Stainless steel panel is secured with Torx screws. Shut off valve, filter and airbreak included.
Key Selling Points
- Suitable for AS1428.1 applications
- Piezo touch button control
- Mains power 24V
- Compact face plate
- Vandal resistant Torx screws
- 1-year warranty
- WELS Category
- Lavatory
- Certifications
- WM 40116
- WELS Half Flush Volume (L)
- 2.8
- WELS Average Flush Volume (L)
- 3.1
- Maximum Recommended Pressure (kPa)
- 500
- Primary Flow Rate (L/min)
- 4.5
- Inlet Connection
- 1” BSP (25mm)
- Outlet Connection
- 1 ½” BSP (40mm)
- Water Supply Line Size
- 1" [25mm] copper pipe
- Flush Pipe
- 1½” (40mm) flush pipe is required below the air break. (Note: use a maximum of 1x90º bend in flush pipe. If an offset is required 2 x 45º bends must be used. Maximum of 1 offset per flush pipe. Air break must be installed in a vertical position at 700mm +/- 100 mm above the pan inlet.
- Finish
- Brushed
- Pan Load Rating
- 5.5
- Kv Factor (m3/h)
- 8.3
- Materials
- Stainless Steel
- Touch Sensor Flush Activation
- PIEZO TOUCH
BIM Files
Brochures
Dimensional Drawings
Product Information


